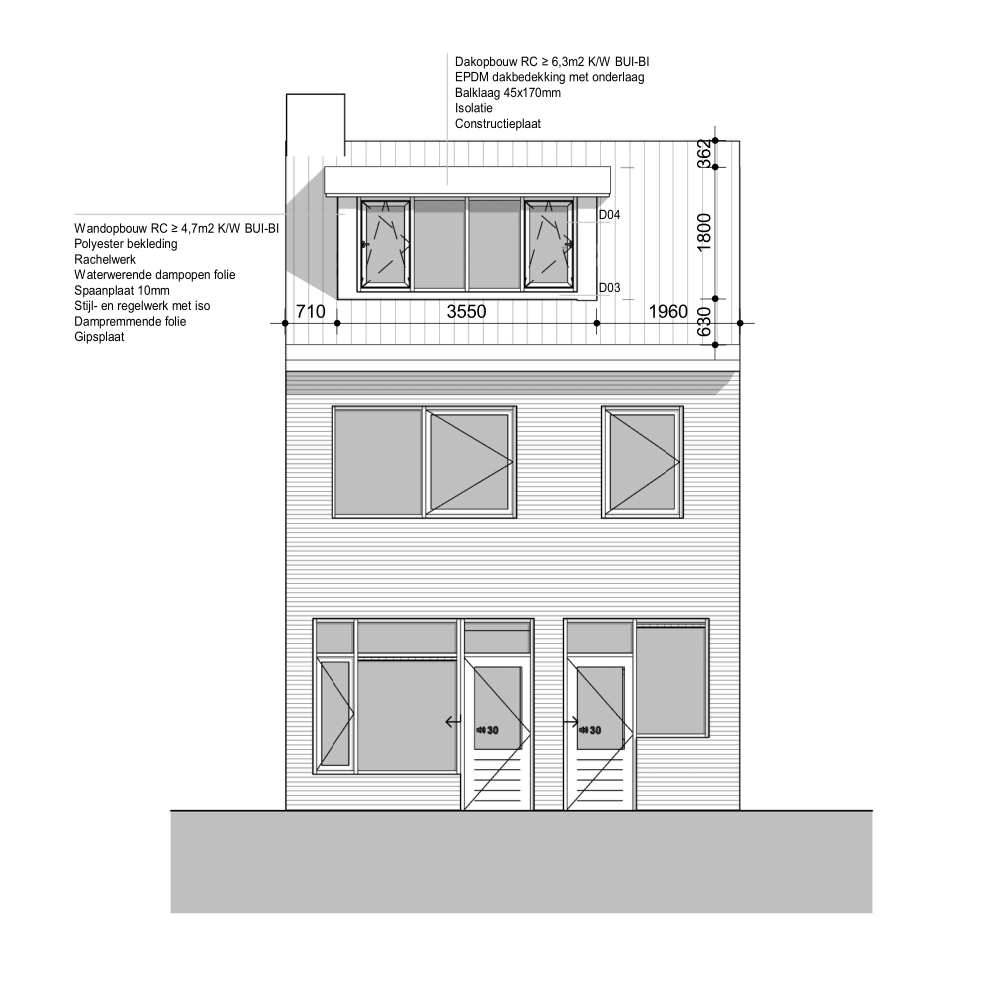
Bouwtekening dakkapel
Heb je een bouwtekening voor een dakkapel nodig voor je vergunningaanvraag? In veel gevallen is een vergunning verplicht. Ook wanneer je een offerte bij een aannemer wilt aanvragen of je plannen helder wilt visualiseren, is een duidelijke bouwtekening essentieel.
Wat je doel ook is: bij ons ben je aan het juiste adres.
Lees verder over onze werkwijze, kosten en waar je rekening mee moet houden. Met ons weet je zeker dat je bouwtekeningen kloppen én voldoen aan de eisen van de gemeente.

Een bouwtekening voor jouw dakkapel
Een bouwtekening voor een dakkapel laten maken is altijd slim—ook als je geen vergunning nodig hebt. Met onze ervaring zorgen we voor heldere, complete tekeningen die exact laten zien wat er gebouwd wordt. Uiteraard tegen scherpe, vaste prijzen.
Onze bouwtekeningen zijn geschikt voor:
- Omgevingsvergunning
- Offerteaanvragen bij aannemers
- Het concreet uitwerken van jouw (ver)bouwplannen
Waarom heb ik een bouwtekening voor mijn dakkapel nodig?
Een bouwtekening geeft duidelijkheid en zekerheid: de gemeente beoordeelt je vergunning, de aannemer kan een betrouwbare offerte maken en je voorkomt fouten en extra kosten.
Bij goedkopebouwvergunning.nl krijg je duidelijke afspraken en vaste all-in prijzen. Wij leveren een complete bouwtekening voor jouw dakkapel, zodat je verbouwing soepel en zonder verrassingen verloopt. Ga je verbouwen? Regel tijdig je aannemer én je bouwtekeningen.
Waarom kiezen voor goedkopebouwvergunning.nl?
Omdat je bij ons snel, duidelijk en betaalbaar geholpen wordt.
Je krijgt vaste all-in prijzen, een haalbaarheidscheck vooraf en professionele bouwtekeningen die meteen geschikt zijn voor je vergunning én je aannemer.
Zonder gedoe, zonder verrassingen — gewoon goed geregeld.
Verschillende soorten dakkapellen
Een dakkapel kan op verschillende manieren worden gebouwd.
De materiaalkeuze en constructie (metselwerk, hout, polyester) bepaalt de uitstraling én wat de gemeente toestaat.
Met onze duidelijke bouwtekeningen weet je aannemer precies wat er gebouwd moet worden—zorgeloos, passend en volgens de regels.

Zo Werkt Het
Ontdek ons eenvoudige stappenplan zodat je snel en moeiteloos jouw bouwvergunning kunt aanvragen via ons platform.
1
Stap 1: Gratis haalbaarheid & offerte
Je vraagt een offerte aan. Wij checken direct of je plan haalbaar is. Alleen bij 100% haalbaarheid ontvang je een offerte.
2
Stap 2: Informatie aanleveren
Voor de offerte is korte info genoeg. Bij start van het project lever je alle relevante documenten aan.
3
Stap 3: Oplevering
Je kiest: alleen bouwtekeningen of volledige vergunningsaanvraag. We ronden af zodra jij de tekeningen of vergunning hebt ontvangen.

Waar moet een dakkapel aan voldoen?
Bij het plaatsen van een dakkapel gelden in veel gemeenten vergelijkbare technische uitgangspunten. De belangrijkste aandachtspunten zijn:
- Vergunningplicht en situering
Een aanbouw is vergunningvrij mogelijk, afhankelijk van landelijke regels en het omgevingsplan. In het achtererfgebied zijn de mogelijkheden het grootst; aan de voorzijde (ook wel: erker) is doorgaans een vergunning vereist. - Afmetingen (diepte, hoogte en oppervlakte)
Vergunningvrij uitbouwen is vaak toegestaan tot circa 4 meter diep. De aanbouw blijft doorgaans onder het niveau van de eerste verdieping en mag vergunningvrij nooit hoger zijn dan 5 meter. De maximale oppervlakte is gekoppeld aan de grootte van het bebouwingsgebied. - Bouwen buiten de 4-meterzone
Bij een aanbouw verder dan 4 meter van het hoofdgebouw gelden meestal strengere eisen voor hoogte en dakvorm, onder andere ter beperking van lichtverlies bij omliggende percelen. - Constructie, techniek en uiterlijk
De aanbouw moet voldoen aan het Besluit bouwwerken leefomgeving (Bbl). Bij vergunningplicht wordt daarnaast getoetst aan welstand en beeldkwaliteit; ook het omgevingsplan kan aanvullende eisen stellen.
Een verbouwing is al stressvol genoeg. Wij maken van de vergunningsaanvraag een zorgeloos proces
– Bart, GoedkopeBouwvergunning.nl
Professionele bouwvergunningen snel en betaalbaar
Hier vindt je heldere antwoorden op de meest gestelde vragen over het verkrijgen van bouwvergunningen, zodat je eenvoudig verder kunt.
Wat kost een dakkapel inclusief plaatsing?
De totale kosten van een dakkapel inclusief plaatsing zijn afhankelijk van verschillende factoren, zoals de leverancier, de afmetingen, het type materiaal en eventuele extra opties, bijvoorbeeld zonwering of aanvullende isolatie. Gemiddeld kun je rekening houden met een prijsindicatie tussen de €5.000 en €12.000. In dit traject is een bouwtekening een belangrijk onderdeel, omdat deze ervoor zorgt dat de dakkapel technisch correct wordt uitgewerkt en voldoet aan de geldende bouwregels.
Wat kost het laten maken van bouwtekeningen en/of het begeleiden van mijn vergunningstraject?
De kosten hangen af van de mate waarin je ontzorgd wilt worden. Bij goedkopebouwvergunning.nl bieden we daarom twee duidelijke opties: alleen bouwtekeningen of volledige begeleiding van het vergunningstraject.
1. Alleen bouwtekeningen
Kies je uitsluitend voor bouwtekeningen, dan doen we een haalbaarheidscheck en leveren wij alle tekeningen die nodig zijn voor een vergunningaanvraag, volledig volgens de geldende eisen en op de juiste schaal, waaronder:
- Plattegronden
- Doorsnedes
- Aanzichten
- Situatietekening
- Detailtekeningen (indien vereist)
Deze optie is geschikt als je zelf de vergunning wilt aanvragen, maar wel zeker wilt zijn van professionele en complete tekeningen.
2. Volledige ontzorging van het vergunningstraject (no cure, no pay)
Wil je volledig ontzorgd worden? Dan begeleiden wij het complete vergunningstraject:
- Haalbaarheidscheck
- Opstellen van alle benodigde bouwtekeningen
- Afstemming met regelgeving en eisen van de gemeente
- Indienen en begeleiden van de vergunningaanvraag
Bij deze optie werken wij op basis van no cure, no pay:
Wordt de vergunning niet verleend, dan betaal je ons honorarium niet.
Zo loop je geen financieel risico en weet je vooraf precies waar je aan toe bent.
Vraag vrijblijvend een offerte aan. Omdat elke situatie uniek is, werken wij niet met vaste prijzen en ontvang je altijd een offerte op maat.
Hoe groot is de kans dat mijn vergunning wordt afgekeurd?
Die kans is er niet — omdat we vooraf kritisch toetsen.
Wij werken met een haalbaarheidscheck.
Als wij vooraf aangeven dat jouw plan haalbaar is, dan geldt:
- Wordt de aanvraag afgekeurd door iets dat binnen onze verantwoordelijkheid valt?
→ Dan passen we alles gratis aan en dien je opnieuw in.
Of je krijgt (afhankelijk van de situatie) een groot deel van onze fee terug.
Let op: deze garantie geldt alleen wanneer wij ook de indiening via Omgevingsloket uitvoeren, omdat we dan het volledige proces beheersen.
Wat moet ik zelf aanleveren en hoe werkt het proces precies?
Stap 1 – Intake invullen
Upload foto’s, oude tekeningen (als je die hebt) en beschrijf je wensen.
Stap 2 – Haalbaarheidscheck + vaste prijs
Je krijgt meteen een realistisch advies + pakketprijs.
Stap 3 – Uitwerking door ons ervaren team
Wij maken de tekeningen en jij controleert de eerste versie.
Stap 4 – Afronding
Je ontvangt de tekeningen.
Stap 5 – Optioneel: indiening via Omgevingsloket
Dit valt niet onder het basispakket.
Wil je dat wij dit deel ook voor je doen?
Aanvullende pakketten zijn mogelijk – neem contact met ons op voor jouw casus.
Wil je meer weten?
Neem vrijblijvend contact op met ons ervaren team voor persoonlijk advies.