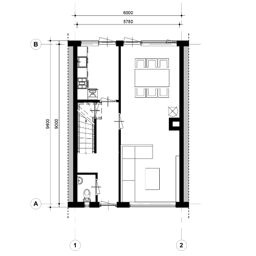
Bouwtekening huidige situatie
Heb je een digitale tekening van de huidige situatie nodig voor de verkoop of verbouwplannen? Voor aannemers en ontwerpers is een duidelijke bestaand-situatie-tekening essentieel om plannen nauwkeurig en foutloos uit te werken.
Wat je doel ook is: bij ons ben je aan het juiste adres.
Lees verder over onze werkwijze, kosten en waar je rekening mee moet houden. Met ons weet je zeker dat je bouwtekeningen kloppen én voldoen aan de eisen van de gemeente.

Een bouwtekening voor jouw huidige situatie
Een bouwtekening voor een huidige situatie laten maken is altijd verstandig—Met onze jarenlange ervaring maken we duidelijke, complete tekeningen waarmee jouw plannen direct helder zijn. En dat altijd tegen scherpe prijzen.
Onze bouwtekeningen zijn geschikt voor:
- Omgevingsvergunning
- Offerteaanvragen bij aannemers of architecten
- Het concreet uitwerken van jouw (ver)bouwplannen
Waarom heb ik een bouwtekening voor mijn huidige situatie nodig?
Een digitale tekening van de huidige situatie zorgt voor duidelijkheid en zekerheid: de koper of architect beoordeelt hiermee je situatie, en je aannemer krijgt exact inzicht in wat er al staat. Zo voorkom je fouten, misverstanden en extra kosten.
Bij goedkopebouwvergunning.nl werken we met duidelijke afspraken en vaste all-in prijzen. Wij digitaliseren jouw bestaande woning nauwkeurig, zodat je project soepel en zonder verrassingen kan starten.
Waarom kiezen voor goedkopebouwvergunning.nl?
Omdat je bij ons snel, duidelijk en betaalbaar geholpen wordt.
Je krijgt vaste all-in prijzen, een haalbaarheidscheck vooraf en professionele bouwtekeningen die meteen geschikt zijn voor je vergunning én je aannemer.
Zonder gedoe, zonder verrassingen — gewoon goed geregeld.
Verschillende redenen voor een huidige situatietekening
Een huidige-situatie tekening is voor veel situaties onmisbaar. Of het nu gaat om verkoop, een architect die verder ontwerpt, of een aannemer die betrouwbaar wil calculeren—een duidelijke digitale weergave van de bestaande woning voorkomt fouten en discussie.
Met onze nauwkeurige tekeningen weet iedereen precies waar hij aan toe is—duidelijk, compleet en volgens de regels.

Zo Werkt Het
Ontdek ons eenvoudige stappenplan zodat je snel en moeiteloos jouw bouwvergunning kunt aanvragen via ons platform.
1
Stap 1: Gratis haalbaarheid & offerte
Je vraagt een offerte aan. Wij checken direct of je plan haalbaar is. Alleen bij 100% haalbaarheid ontvang je een offerte.
2
Stap 2: Informatie aanleveren
Voor de offerte is korte info genoeg. Bij start van het project lever je alle relevante documenten aan.
3
Stap 3: Oplevering
Je kiest: alleen bouwtekeningen of volledige vergunningsaanvraag. We ronden af zodra jij de tekeningen of vergunning hebt ontvangen.
Waarom zou ik een huidige situatie digitaliseren?
Het digitaliseren van de huidige situatie van een woning of gebouw vormt in veel trajecten de basis voor goede besluitvorming. Of het nu gaat om een verbouwing, herinrichting of verkoop: een nauwkeurige en overzichtelijke bouwtekening voorkomt misverstanden en maakt plannen concreet.
Er zijn verschillende redenen om de bestaande situatie te laten digitaliseren. Zo vormt een digitale tekening vaak het vertrekpunt voor een interieurarchitect bij het ontwerpen van een nieuw interieur. Ook bij het opvragen en vergelijken van offertes is een duidelijke huidige-situatietekening essentieel, zodat aannemers en adviseurs uitgaan van dezelfde uitgangspunten. Daarnaast worden digitale tekeningen veel gebruikt als verkooptekeningen voor makelaars, bijvoorbeeld om plattegronden professioneel en overzichtelijk te presenteren.
Waarom kiezen voor GoedkopeBouwvergunning?
Wij hebben ervaring met al deze toepassingen — en met situaties die daar net buiten vallen. Door onze praktijkervaring weten we welke informatie nodig is per doel, hoe gedetailleerd een tekening moet zijn en waar opdrachtgevers vaak tegenaan lopen. Daardoor leveren wij tekeningen die niet alleen technisch kloppen, maar ook daadwerkelijk bruikbaar zijn in het vervolgtraject.
De bouwtekeningen worden opgesteld op schaal en geven de bestaande situatie helder weer, inclusief maatvoering, ruimtelijke indeling en relevante bouwkundige elementen. Zo ontstaat een betrouwbare basis waarop verder kan worden ontworpen, gerekend of gecommuniceerd.
Dankzij onze expertise, leveren wij snel en goedkoop bouwtekeningen voor elke maatwerk situatie.
– Bart, GoedkopeBouwvergunning.nl
Professionele bouwvergunningen snel en betaalbaar
Hier vindt je heldere antwoorden op de meest gestelde vragen over het verkrijgen van bouwvergunningen, zodat je eenvoudig verder kunt.
Wat komt kijken bij het digitaliseren van de huidige situatie?
Het digitaliseren van de huidige situatie begint met het vaststellen van het doel van de tekeningen. Afhankelijk van waarvoor je de bouwtekeningen wilt gebruiken — bijvoorbeeld voor een interieurontwerp, het opvragen van offertes, een verbouwing of verkoop — verschillen de eisen aan detailniveau en uitwerking.
Wij stemmen de werkzaamheden volledig af op jouw wensen. Dat betekent dat we alleen uitwerken wat daadwerkelijk nodig is. Heb je geen behoefte aan detailtekeningen, installaties of uitgebreide maatvoering? Dan laten we die onderdelen achterwege. Zijn juist extra details of aanvullende tekeningen gewenst? Dan kunnen we die uiteraard toevoegen.
Door deze flexibele aanpak blijft het proces overzichtelijk en betaal je niet voor onderdelen die je niet nodig hebt. In de praktijk komt het erop neer dat je zelf bepaalt wat je van ons afneemt en hoe uitgebreid de digitale uitwerking wordt. Wij adviseren daarbij op basis van onze ervaring, zodat de tekeningen altijd geschikt zijn voor het beoogde vervolgtraject.
Kortom: veel is mogelijk, maatwerk staat centraal en de uiteindelijke uitwerking sluit altijd aan op jouw situatie — zowel inhoudelijk als qua kosten.
Wat kost het laten maken van bouwtekeningen en/of het begeleiden van mijn vergunningstraject?
De kosten hangen af van de mate waarin je ontzorgd wilt worden. Bij goedkopebouwvergunning.nl bieden we daarom twee duidelijke opties: alleen bouwtekeningen of volledige begeleiding van het vergunningstraject.
1. Alleen bouwtekeningen
Kies je uitsluitend voor bouwtekeningen, dan doen we een haalbaarheidscheck en leveren wij alle tekeningen die nodig zijn voor een vergunningaanvraag, volledig volgens de geldende eisen en op de juiste schaal, waaronder:
- Plattegronden
- Doorsnedes
- Aanzichten
- Situatietekening
- Detailtekeningen (indien vereist)
Deze optie is geschikt als je zelf de vergunning wilt aanvragen, maar wel zeker wilt zijn van professionele en complete tekeningen.
2. Volledige ontzorging van het vergunningstraject (no cure, no pay)
Wil je volledig ontzorgd worden? Dan begeleiden wij het complete vergunningstraject:
- Haalbaarheidscheck
- Opstellen van alle benodigde bouwtekeningen
- Afstemming met regelgeving en eisen van de gemeente
- Indienen en begeleiden van de vergunningaanvraag
Bij deze optie werken wij op basis van no cure, no pay:
Wordt de vergunning niet verleend, dan betaal je ons honorarium niet.
Zo loop je geen financieel risico en weet je vooraf precies waar je aan toe bent.
Vraag vrijblijvend een offerte aan. Omdat elke situatie uniek is, werken wij niet met vaste prijzen en ontvang je altijd een offerte op maat.
Hoe groot is de kans dat mijn vergunning wordt afgekeurd?
Die kans is er niet — omdat we vooraf kritisch toetsen.
Wij werken met een haalbaarheidscheck.
Als wij vooraf aangeven dat jouw plan haalbaar is, dan geldt:
- Wordt de aanvraag afgekeurd door iets dat binnen onze verantwoordelijkheid valt?
→ Dan passen we alles gratis aan en dien je opnieuw in.
Of je krijgt (afhankelijk van de situatie) een groot deel van onze fee terug.
Let op: deze garantie geldt alleen wanneer wij ook de indiening via Omgevingsloket uitvoeren, omdat we dan het volledige proces beheersen.
Wat moet ik zelf aanleveren en hoe werkt het proces precies?
Stap 1 – Intake invullen
Upload foto’s, oude tekeningen (als je die hebt) en beschrijf je wensen.
Stap 2 – Haalbaarheidscheck + vaste prijs
Je krijgt meteen een realistisch advies + pakketprijs.
Stap 3 – Uitwerking door ons ervaren team
Wij maken de tekeningen en jij controleert de eerste versie.
Stap 4 – Afronding
Je ontvangt de tekeningen.
Stap 5 – Optioneel: indiening via Omgevingsloket
Dit valt niet onder het basispakket.
Wil je dat wij dit deel ook voor je doen?
Aanvullende pakketten zijn mogelijk – neem contact met ons op voor jouw casus.
Wil je meer weten?
Neem vrijblijvend contact op met ons ervaren team voor persoonlijk advies.