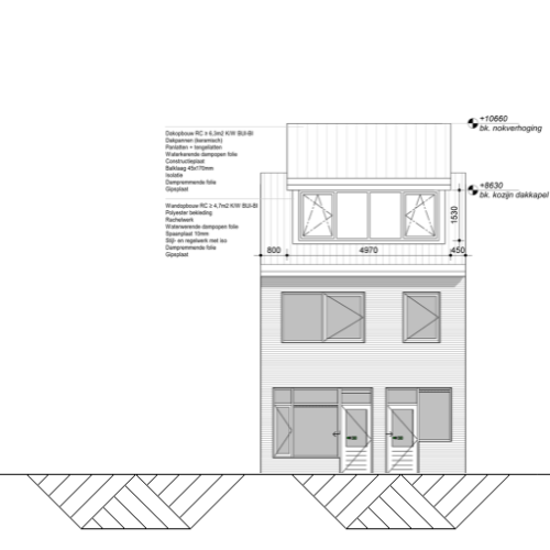
Bouwtekening nokverhoging

Heb je een bouwtekening voor een nokverhoging nodig voor je vergunningaanvraag? In alle gevallen is een vergunning verplicht. Ook wanneer je een offerte bij een aannemer wilt aanvragen of je plannen helder wilt visualiseren, is een duidelijke bouwtekening essentieel.

Wat je doel ook is: bij ons ben je aan het juiste adres.
Lees verder over onze werkwijze, kosten en waar je rekening mee moet houden. Met ons weet je zeker dat je bouwtekeningen kloppen én voldoen aan de eisen van de gemeente.

Een bouwtekening voor jouw nokverhoging

Een bouwtekening voor een nokverhoging laten maken is altijd verstandig. Met onze jarenlange ervaring maken we duidelijke, complete tekeningen waarmee jouw plannen direct helder zijn. En dat altijd tegen scherpe prijzen.

Onze bouwtekeningen zijn geschikt voor:

  • Omgevingsvergunning
  • Offerteaanvragen bij aannemers
  • Het concreet uitwerken van jouw (ver)bouwplannen

Waarom heb ik een bouwtekening voor mijn nokverhoging nodig?

Een bouwtekening geeft duidelijkheid en zekerheid: de gemeente beoordeelt je vergunning, de aannemer kan een betrouwbare offerte maken en je voorkomt fouten en extra kosten.
Bij goedkopebouwvergunning.nl krijg je duidelijke afspraken en vaste all-in prijzen. Wij leveren een complete bouwtekening voor jouw aanbouw, zodat je verbouwing soepel en zonder verrassingen verloopt. Ga je verbouwen? Regel tijdig je aannemer én je bouwtekeningen.

Waarom kiezen voor goedkopebouwvergunning.nl?

Omdat je bij ons snel, duidelijk en betaalbaar geholpen wordt.
Je krijgt vaste all-in prijzen, een haalbaarheidscheck vooraf en professionele bouwtekeningen die meteen geschikt zijn voor je vergunning én je aannemer.
Zonder gedoe, zonder verrassingen — gewoon goed geregeld.

Verschillende soorten nokverhogingen

Een nokverhoging kan op verschillende manieren worden gebouwd.

De materiaalkeuze (metselwerk, hout, staal) en het type kozijn bepaalt de uitstraling én wat de gemeente toestaat.
Met onze duidelijke bouwtekeningen weet je aannemer precies wat er gebouwd moet worden—zorgeloos, passend en volgens de regels.

Zo Werkt Het

Ontdek ons eenvoudige stappenplan zodat je snel en moeiteloos jouw bouwvergunning kunt aanvragen via ons platform.

Stap 1: Gratis haalbaarheid & offerte

Je vraagt een offerte aan. Wij checken direct of je plan haalbaar is. Alleen bij 100% haalbaarheid ontvang je een offerte.

Stap 2: Informatie aanleveren

Voor de offerte is korte info genoeg. Bij start van het project lever je alle relevante documenten aan.

Stap 3: Oplevering

Je kiest: alleen bouwtekeningen of volledige vergunningsaanvraag. We ronden af zodra jij de tekeningen of vergunning hebt ontvangen.

Waar moet een nokverhoging aan voldoen?

Bij een nokverhoging gelden in veel gemeenten vergelijkbare regels, deze zijn doorgaans strenger dan bij een dakkapel. De belangrijkste aandachtspunten zijn:

  • Vergunningplicht
    Een nokverhoging is vrijwel altijd vergunningplichtig vanwege wijziging van bouwhoogte en volume. De aanvraag wordt getoetst aan omgevingsplan, welstand en bouwtechnische eisen.
  • Hoogte, volume en positionering
    Maximale nok- en goothoogte liggen vast in het omgevingsplan. Overschrijding is meestal niet toegestaan; soms is alleen een gedeeltelijke verhoging mogelijk. De dakhelling blijft doorgaans gelijk.
  • Vorm, uitstraling en materialisatie
    Om het straatbeeld te beschermen gelden eisen voor positionering, vormgeving en materialen. De achterzijde is vaak kansrijker; soms is een terugliggende uitvoering vereist.
  • Constructie en veiligheid
    Omdat de draagconstructie wordt aangepast, is een constructieve onderbouwing verplicht. De constructie moet voldoen aan eisen voor stabiliteit en brandveiligheid.

Een verbouwing is al stressvol genoeg. Wij maken van de vergunningsaanvraag een zorgeloos proces

Bart, GoedkopeBouwvergunning.nl

Professionele bouwvergunningen snel en betaalbaar

Hier vindt je heldere antwoorden op de meest gestelde vragen over het verkrijgen van bouwvergunningen, zodat je eenvoudig verder kunt.

Wat kost een nokverhoging inclusief plaatsing?

De totale kosten van een nokverhoging inclusief plaatsing zijn afhankelijk van verschillende factoren, zoals de omvang van de opbouw (enkelzijdig of dubbelzijdig), de bestaande dakconstructie, de gekozen materialen en de complexiteit van de uitvoering. Ook constructieve aanpassingen en aanvullende isolatiemaatregelen spelen hierbij een rol. Gemiddeld kun je rekening houden met een prijsindicatie tussen de €20.000 en €50.000. In dit traject is een bouwtekening een essentieel onderdeel, omdat deze nodig is voor een correcte constructieve uitwerking en voor het aanvragen van de omgevingsvergunning volgens de geldende bouwregels.

Wat kost het laten maken van bouwtekeningen en/of het begeleiden van mijn vergunningstraject?

De kosten hangen af van de mate waarin je ontzorgd wilt worden. Bij goedkopebouwvergunning.nl bieden we daarom twee duidelijke opties: alleen bouwtekeningen of volledige begeleiding van het vergunningstraject.

1. Alleen bouwtekeningen

Kies je uitsluitend voor bouwtekeningen, dan doen we een haalbaarheidscheck en leveren wij alle tekeningen die nodig zijn voor een vergunningaanvraag, volledig volgens de geldende eisen en op de juiste schaal, waaronder:

  • Plattegronden
  • Doorsnedes
  • Aanzichten
  • Situatietekening
  • Detailtekeningen (indien vereist)

Deze optie is geschikt als je zelf de vergunning wilt aanvragen, maar wel zeker wilt zijn van professionele en complete tekeningen.

2. Volledige ontzorging van het vergunningstraject (no cure, no pay)

Wil je volledig ontzorgd worden? Dan begeleiden wij het complete vergunningstraject:

  • Haalbaarheidscheck
  • Opstellen van alle benodigde bouwtekeningen
  • Afstemming met regelgeving en eisen van de gemeente
  • Indienen en begeleiden van de vergunningaanvraag

Bij deze optie werken wij op basis van no cure, no pay:

Wordt de vergunning niet verleend, dan betaal je ons honorarium niet.

Zo loop je geen financieel risico en weet je vooraf precies waar je aan toe bent.

Vraag vrijblijvend een offerte aan. Omdat elke situatie uniek is, werken wij niet met vaste prijzen en ontvang je altijd een offerte op maat.

Hoe groot is de kans dat mijn vergunning wordt afgekeurd?

Die kans is er niet — omdat we vooraf kritisch toetsen.

Wij werken met een haalbaarheidscheck.
Als wij vooraf aangeven dat jouw plan haalbaar is, dan geldt:

  • Wordt de aanvraag afgekeurd door iets dat binnen onze verantwoordelijkheid valt?
    → Dan passen we alles gratis aan en dien je opnieuw in.
    Of je krijgt (afhankelijk van de situatie) een groot deel van onze fee terug.

Let op: deze garantie geldt alleen wanneer wij ook de indiening via Omgevingsloket uitvoeren, omdat we dan het volledige proces beheersen.

Wat moet ik zelf aanleveren en hoe werkt het proces precies?

Stap 1 – Intake invullen
Upload foto’s, oude tekeningen (als je die hebt) en beschrijf je wensen.

Stap 2 – Haalbaarheidscheck + vaste prijs
Je krijgt meteen een realistisch advies + pakketprijs.

Stap 3 – Uitwerking door ons ervaren team
Wij maken de tekeningen en jij controleert de eerste versie.

Stap 4 – Afronding
Je ontvangt de tekeningen.

Stap 5 – Optioneel: indiening via Omgevingsloket
Dit valt niet onder het basispakket.
Wil je dat wij dit deel ook voor je doen?
Aanvullende pakketten zijn mogelijk – neem contact met ons op voor jouw casus.

Wil je meer weten?

Neem vrijblijvend contact op met ons ervaren team voor persoonlijk advies.