Bouwtekening woningsplitsing
Heb je een bouwtekening voor een woningsplitsing nodig voor je vergunningaanvraag? In veel gevallen is een vergunning verplicht. Ook wanneer je een offerte bij een aannemer wilt aanvragen of je plannen helder wilt visualiseren, is een duidelijke bouwtekening essentieel.
Wat je doel ook is: bij ons ben je aan het juiste adres.
Lees verder over onze werkwijze, kosten en waar je rekening mee moet houden. Met ons weet je zeker dat je bouwtekeningen kloppen én voldoen aan de eisen van de gemeente.

Een bouwtekening voor jouw woningsplitsing
Een bouwtekening voor een woningsplitsing laten maken is altijd verstandig. Met onze jarenlange ervaring maken we duidelijke, complete tekeningen waarmee jouw plannen direct helder zijn. En dat altijd tegen scherpe prijzen.
Onze bouwtekeningen zijn geschikt voor:
- Omgevingsvergunning
- Offerteaanvragen bij aannemers
- Het concreet uitwerken van jouw (ver)bouwplannen
Waarom heb ik een bouwtekening voor mijn woningsplitsing nodig?
Een bouwtekening geeft duidelijkheid en zekerheid: de gemeente beoordeelt je vergunning, de aannemer kan een betrouwbare offerte maken en je voorkomt fouten en extra kosten.
Bij goedkopebouwvergunning.nl krijg je duidelijke afspraken en vaste all-in prijzen. Wij leveren een complete bouwtekening voor jouw woningsplitsing, zodat je verbouwing soepel en zonder verrassingen verloopt. Ga je verbouwen? Regel tijdig je aannemer én je bouwtekeningen.
Waarom kiezen voor GoedkopeBouwvergunning?
Omdat je bij ons snel, duidelijk en betaalbaar geholpen wordt.
Je krijgt vaste all-in prijzen, een haalbaarheidscheck vooraf en professionele bouwtekeningen die meteen geschikt zijn voor je vergunning én je aannemer.
Zonder gedoe, zonder verrassingen — gewoon goed geregeld.
Verschillende soorten woningsplitsingen
Een woning kun je op twee manieren splitsen:
- Bouwkundig – het fysiek opdelen in zelfstandige units.
- Kadastraal – het juridisch scheiden in aparte eigendommen.
Welke vorm je kiest, bepaalt de eisen van de gemeente.
Met onze duidelijke bouwtekeningen weet je zeker dat jouw splitsing correct en volgens de regels wordt ingediend.

Zo Werkt Het
Ontdek ons eenvoudige stappenplan zodat je snel en moeiteloos jouw bouwvergunning kunt aanvragen via ons platform.
1
Stap 1: Gratis haalbaarheid & offerte
Je vraagt een offerte aan. Wij checken direct of je plan haalbaar is. Alleen bij 100% haalbaarheid ontvang je een offerte.
2
Stap 2: Informatie aanleveren
Voor de offerte is korte info genoeg. Bij start van het project lever je alle relevante documenten aan.
3
Stap 3: Oplevering
Je kiest: alleen bouwtekeningen of volledige vergunningsaanvraag. We ronden af zodra jij de tekeningen of vergunning hebt ontvangen.
Waarom zou ik een woning splitsen?
Het splitsen van een woning is een steeds populairdere strategie onder vastgoedinvesteerders. Door één woning op te delen in meerdere zelfstandige wooneenheden kan het rendement aanzienlijk worden vergroot. Tegelijkertijd is woningsplitsing een complex traject, waarbij regelgeving, haalbaarheid en technische uitwerking sterk per situatie verschillen.
Dankzij onze ervaring met woningsplitsingen en ons uitgebreide netwerk weten wij wat in de praktijk werkt — en wat niet. We hebben inzicht in hoe gemeenten omgaan met splitsingsverzoeken en waar de ruimte zit binnen regelgeving, omgevingsplannen en beleid. Hierdoor kunnen we al in een vroeg stadium meedenken over realistische en kansrijke oplossingen.
Waarom kiezen voor GoedkopeBouwvergunning?
Een goede bouwtekening speelt hierin een cruciale rol. Deze vormt de basis voor de beoordeling door de gemeente en laat zien hoe de woning technisch, ruimtelijk en functioneel wordt gesplitst. Wij zorgen voor een doordachte uitwerking waarin zaken als ontsluiting, gebruiksoppervlak, daglicht, installaties en brandveiligheid logisch en correct zijn opgenomen.
Door onze praktijkervaring herkennen we snel wanneer een plan haalbaar is, waar aanpassingen nodig zijn en wanneer splitsing in een bepaalde vorm niet realistisch is. Zo voorkomen we onnodige kosten en sturen we aan op een plan dat niet alleen technisch klopt, maar ook juridisch en beleidsmatig verdedigbaar is.
Een woning splitsen is al stressvol genoeg. Wij maken van de vergunningsaanvraag een zorgeloos proces
– Bart, GoedkopeBouwvergunning.nl
Professionele bouwvergunningen snel en betaalbaar
Hier vindt je heldere antwoorden op de meest gestelde vragen over het verkrijgen van bouwvergunningen, zodat je eenvoudig verder kunt.
Wat kost een woning splitsen en wat komt hierbij kijken?
De kosten voor het splitsen van een woning lopen sterk uiteen en zijn afhankelijk van factoren zoals de bestaande woning, het aantal te realiseren wooneenheden, gemeentelijk beleid en de benodigde aanpassingen. Woningsplitsing is maatwerk: geen enkele situatie is hetzelfde.
Wat kost een woningsplitsing?
Als globale richtlijn kun je in Nederland rekening houden met:
- Voorbereidings- en vergunningskosten:
Denk aan bouwtekeningen, onderzoeken, advies en de vergunningaanvraag. Dit ligt vaak in de orde van enkele duizenden tot tienduizenden euro’s, afhankelijk van de complexiteit en eisen van de gemeente. - Bouwkundige kosten:
Aanpassingen zoals het realiseren van extra keukens en badkamers, brand- en geluidscheidingen, nieuwe installaties en ontsluitingen zorgen voor de grootste kostenpost. Deze kosten lopen vaak uiteen van €30.000 tot €100.000+, afhankelijk van de omvang van de ingreep.
In totaal komt een woningsplitsing in veel gevallen uit op €40.000 tot €120.000 of meer, afhankelijk van de situatie.
Wat komt er bij woningsplitsing kijken?
Naast de kosten spelen meerdere aspecten een belangrijke rol:
- Toetsing aan gemeentelijk beleid en het omgevingsplan
- Parkeer- en leefbaarheidsregels
- Brandveiligheid, geluidsisolatie en daglichttoetreding
- Een correcte bouwkundige en functionele indeling per woning
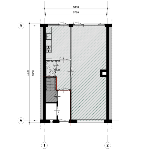
Een goede bouwtekening is hierbij essentieel. Deze laat zien dat de splitsing technisch haalbaar is en voldoet aan de geldende regelgeving, en vormt de basis voor de beoordeling door de gemeente.
Rendement en investeringsafweging
Woningsplitsing wordt vaak toegepast vanwege het potentieel hogere rendement. Meerdere zelfstandige wooneenheden kunnen samen een hogere huuropbrengst of verkoopwaarde opleveren dan één woning. Of dit rendement daadwerkelijk wordt behaald, hangt af van:
- de totale investeringskosten,
- de lokale huur- of verkoopmarkt,
- en de haalbaarheid binnen gemeentelijk beleid.
Juist daarom is een realistische haalbaarheidsanalyse vooraf cruciaal. Zo voorkom je dat kosten oplopen zonder dat het rendement dit rechtvaardigt.
Wat kost het laten maken van bouwtekeningen en/of het begeleiden van mijn vergunningstraject?
De kosten hangen af van de mate waarin je ontzorgd wilt worden. Bij goedkopebouwvergunning.nl bieden we daarom twee duidelijke opties: alleen bouwtekeningen of volledige begeleiding van het vergunningstraject.
1. Alleen bouwtekeningen
Kies je uitsluitend voor bouwtekeningen, dan doen we een haalbaarheidscheck en leveren wij alle tekeningen die nodig zijn voor een vergunningaanvraag, volledig volgens de geldende eisen en op de juiste schaal, waaronder:
- Plattegronden
- Doorsnedes
- Aanzichten
- Situatietekening
- Detailtekeningen (indien vereist)
Deze optie is geschikt als je zelf de vergunning wilt aanvragen, maar wel zeker wilt zijn van professionele en complete tekeningen.
2. Volledige ontzorging van het vergunningstraject (no cure, no pay)
Wil je volledig ontzorgd worden? Dan begeleiden wij het complete vergunningstraject:
- Haalbaarheidscheck
- Opstellen van alle benodigde bouwtekeningen
- Afstemming met regelgeving en eisen van de gemeente
- Indienen en begeleiden van de vergunningaanvraag
Bij deze optie werken wij op basis van no cure, no pay:
Wordt de vergunning niet verleend, dan betaal je ons honorarium niet.
Zo loop je geen financieel risico en weet je vooraf precies waar je aan toe bent.
Vraag vrijblijvend een offerte aan. Omdat elke situatie uniek is, werken wij niet met vaste prijzen en ontvang je altijd een offerte op maat.
Hoe groot is de kans dat mijn vergunning wordt afgekeurd?
Die kans is er niet — omdat we vooraf kritisch toetsen.
Wij werken met een haalbaarheidscheck.
Als wij vooraf aangeven dat jouw plan haalbaar is, dan geldt:
- Wordt de aanvraag afgekeurd door iets dat binnen onze verantwoordelijkheid valt?
→ Dan passen we alles gratis aan en dien je opnieuw in.
Of je krijgt (afhankelijk van de situatie) een groot deel van onze fee terug.
Let op: deze garantie geldt alleen wanneer wij ook de indiening via Omgevingsloket uitvoeren, omdat we dan het volledige proces beheersen.
Wat moet ik zelf aanleveren en hoe werkt het proces precies?
Stap 1 – Intake invullen
Upload foto’s, oude tekeningen (als je die hebt) en beschrijf je wensen.
Stap 2 – Haalbaarheidscheck + vaste prijs
Je krijgt meteen een realistisch advies + pakketprijs.
Stap 3 – Uitwerking door ons ervaren team
Wij maken de tekeningen en jij controleert de eerste versie.
Stap 4 – Afronding
Je ontvangt de tekeningen.
Stap 5 – Optioneel: indiening via Omgevingsloket
Dit valt niet onder het basispakket.
Wil je dat wij dit deel ook voor je doen?
Aanvullende pakketten zijn mogelijk – neem contact met ons op voor jouw casus.
Wil je meer weten?
Neem vrijblijvend contact op met ons ervaren team voor persoonlijk advies.